header-logo2.png

Vyberte si z 5 typov bungalovov

Rodinné domy sú k dispozícii typu bungalov. s moderným dizajnom a priestorovým riešením v rôznych veľkostiach a vybavením. Každý z domov má slnečnú terasu dostupnú cez veľké francúzske okná. priestrannú kuchyňu s obývačkou. vybavenie modernými technológiami a sú stavané v energetickej triede ..A...

Pod Striebornicou Bungalov 1.jpg
Pod Striebornicou Bungalov 2.jpg
Pod Striebornicou Bungalov 3.jpg
Pod Striebornicou Bungalov 4.jpg
Pod Striebornicou Bungalov 5.jpg

Bungalov 5

Bungalov 5

cena uzatvorenej hrubej stavby s oknami. strechou. vrátane všetkých inžinierských sietí. cena pozemku podľa zvolenej parcely

80700

hrubá stavba

Popis

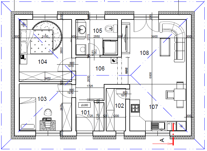
Bungalov č. 5 je prízemný rodinný dom kompaktných rozmerov. projektovaný s malou priestorovou náročnosťou. s ohľadom na čo najnižšiu energetickú náročnosť a čo najlepšie priestorové využitie. Je vhodný pre výstavbu aj na menšom pozemku s možnosťou umiestnenia parkovania v jeho prednej časti. Mohol by splniť očakávania malej rodiny. prípadne staršieho manželského páru.
Jeho obytné. prízemné podlažie pozostáva zo vstupnej chodby s priestorom pre vstavané skrine . ktorá prechádza do slnečného a otvoreného priestoru kuchyne s obývačkou vybavenej priestrannou komorou. kúpeľne a dvoch samostatných izieb. V hale je možnosť umiestnenia krbu ( komín k dispozícii ) a je vybavená veľkými francúzskymi dverami so vstupom na slnečnú terasu.  

Cena domu je prerátaná do stavu hrubej stavby ( základová doska s obvodovým murivom. vnútorné priečky. okná. vstupné dvere. strecha. klampiarske práce...)

Dom je však možné objednať aj dokončený do stavu holodom. V tomto prípade bude rodinný dom kompletne zateplený. vybavený modernými oknami s izolačným trojsklom a vykurovanie bude zabezpečené úsporným kondenzačným kotlom s podlahovým kúrením ( vrátane prípavy teplej vody ). prípadne modernou technológiou vykurovania tepelným čerpadlom ( doplatok len 6.000 EUR + možnosť vybavenia dotácie). Vyváženej teplote a úspore bude pomáhať rekuperačná jednotka.  Rodinný dom bude kompletne zateplený ( podlahy. obvodový plášť 20 cm polystyrén. stropy 30 cm minerálna vlna ). Dom bude odovzdaný v ponukovej cene takmer dokončený. chýbať bude  položiť podlahy a interiérové dvere. obložiť a namontovať sanitu v kúpeľni a WC. osadiť kuchynskú linku... Cenu vybavenia holodom poskytneme na vyžiadanie.

Zastavaná plocha domu: 111.08 m2        Úžitková plocha domu: 66.95 m2

Stav budovy

V prípade hrubej stavby: základová doska s obvodovým murivom. vnútorné priečky. okná. vstupné dvere. strecha. klampiarske práce...

V prípade stavu - holodom: Odovdzávame plne funkčný. nízkoenergetický RD napojený na el. energiu. vodovod. plyn ( bez meračov ). kanalizáciu. s plne funkčným kúrením ( plynový kotol / tepelné čerpadlo ). kompletne zateplený. vymaľovaný základným náterom na bielo. vypínače. zásuvky. Bez podláh. interiérových dverí obkladov a sanity.

Materiály

Materiál stavby :
tehla
Zateplenie :
podlahy. obvodový plášť 20 cm polystyrén. stropy 30 cm minerálna vlna
Podlahy :
betón
Okná :
plastové biele - izolačné trojsklo
Vchodové dvere :
plastové plné biele
Strop :
drevený - sadrokartón. zateplenie minerálnou vlnou 30 cm
Strecha :
valbová. škridla Terran ( farba podľa výberu )
Vykurovanie :
podlahové s plynovým kondenzačným kotlom prípadne tepelné čerpadlo ( doplatok 6.000 EUR )
Teplá voda :
súbežne s UK
El. energia :
230 V - možnosť 400 V
Voda :
vodovod
Plyn :
áno
Odpad :
kanalizácia
Energetický certifikát :
A

Ďalšie vybavenie

V cene domu je v prípade vybavenia holodom aj vybavenie ako komín. rekuperácia. možnosť klimatizácie s 50% zľavou z cenníkovej ceny. samozrejmosťou je bleskozvod. prepäťová ochrana. prúdový chránič. vonkajšia zásuvka a vývod na hadicu. Ponúkame za doplatok 6.000 EUR vybavenie domu moderným vykurovaním tepelným čerpadlom. 

Ďalej v cene domu: projektová dokumentácia. poplatky za stavebné a v prípade vybavenia holodom kolaudačné konanie. V projekte je možné po dohode meniť vybavenosť. farebné kombinácie. stupeň dokončenia rodinného domu.

Pôdorysy

podorys 1